Villa singola in vendita

Caorso, Via Don Bergamaschi
€ 258.000
4 locali 4 locali
160 Mq 160 Mq
2 bagni 2 bagni

Villa singola in vendita

Caorso, Via Don Bergamaschi

Descrizione annuncio

CAORSO:

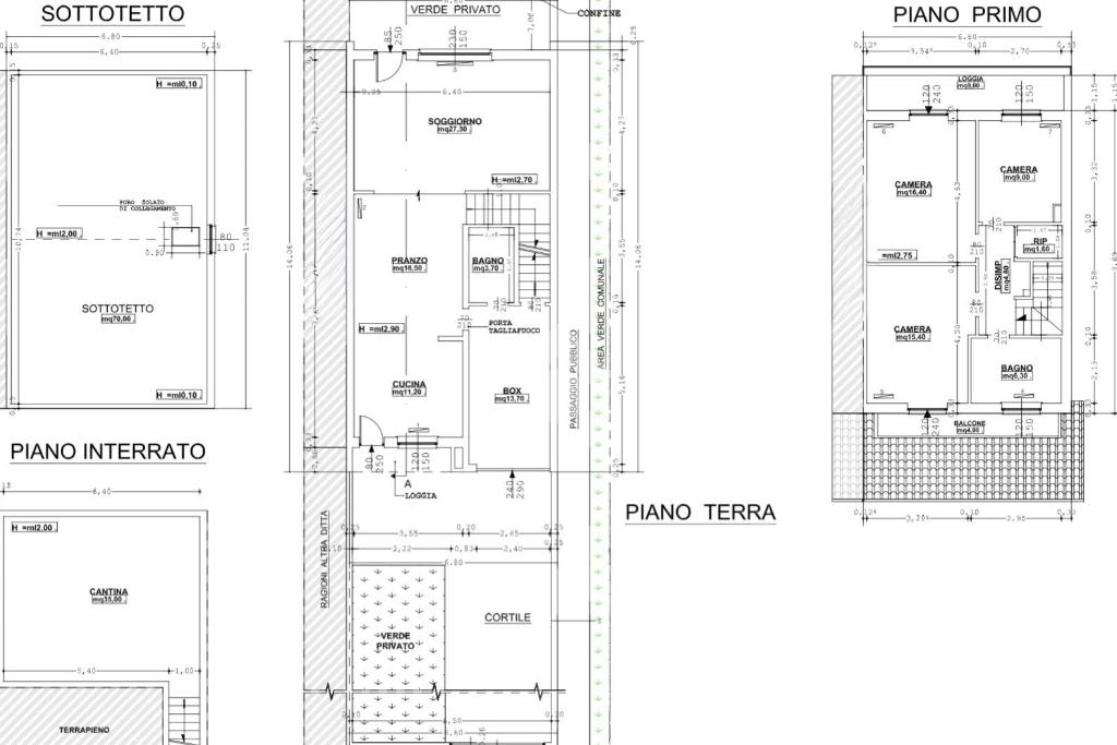
Nel comune di Caorso, proponiamo in vendita una villa singola di circa 160 mq, costruita nel 1989 e recentemente ristrutturata nel 2021.

La casa è composta da un ampia zona giorno situata al piano terra con open space, dotata di salone, cucina e bagno, con un box adiacente con ingresso diretto nell' abitazione e una taverna al piano semi interrato.

Al primo piano troveremo due ampie camere matrimoniali dotate di terrazzo e balcone, una camera singola e un bagno.

L' immobile offre un comfort abitativo di alto livello grazie a una serie di caratteristiche moderne e sostenibili.

La villa è dotata di un cappotto termico da 18 cm, tripli vetri, cassoni e tapparelle nuove e coibentate e un tetto isolato, garantendo un'eccellente efficienza energetica.

L'impianto fotovoltaico da 6 kW, abbinato a batterie di accumulo da 10 kW, assicura un notevole risparmio energetico.

La presenza di una colonnina per la ricarica dei veicoli elettrici e un sistema domotico avanzato aggiungono ulteriore valore all'immobile.

Gli ambienti sono climatizzati con tre split inverter dotati di tre motori indipendenti.

Completano la proprietà un cortile davanti e giardino sul retro, ideali per momenti di relax all'aperto.

Questa villa rappresenta una soluzione abitativa ideale per chi cerca comfort e sostenibilità.

Mostra tutto

Nelle vicinanze

Trasporto pubblico Trasporto pubblico
Caorso
Caorso
720 m
Trasporto pubblico
1,1 Km
Ricariche auto elettriche Ricariche auto elettriche
Caorso Torta | EnelX
800 m
Caorso Bussandri | EnelX
1,2 Km
Caorso Ceramica | EnelX Fast
2,1 Km
Farmacia Farmacia
Farmacia
790 m
Supermercati Supermercati
famila
200 m
Bar Bar
La Rocca
300 m
Bar
830 m
Ristoranti Ristoranti
Osteria del Morino
570 m
trattoria da Enno
1,8 Km
Osteria Lo Spuntino
2,6 Km
Mostra tutto

Caratteristiche

Rif.:
61180850
Piano:
2 di 2 (Piano su più livelli)
Box:
1
Posti auto:
1
Balconi:
1
Terrazzi:
1
Mostra tutto
Prezzo Prezzo
€ 258.000
Rata mutuo Rata mutuo
€ 1.223 / mese
Spese annue Spese annue
€ 0
Proponi il tuo prezzoProponi il tuo prezzo

Classe Energetica

A2
A2
A2
A2
A2
A2
A2
A2
A2
EP globale non rinnovabile:
68.12 kW h/m² anno
EP globale rinnovabile:
68.12 kW h/m² anno
EP invernale del fabbricato:
EP estiva del fabbricato:
Anno di costruzione:
1990
Riscaldamento:
Autonomo
Tipo impianto:
A radiatori
Tipo alimentazione:
Pannelli

Ti interessa visionare l'immobile?

Fissa un appuntamento  Fissa un appuntamento

Richiedi informazioni

Clicca su Leggi per aprire l'informativa
* Questi campi sono obbligatori

Calcola il tuo mutuo

Semplice e senza impegno
Anticipo

( % )
Mutuo

( % )

pochi semplici passi

inserisci i tuoi dati
Questionario completato
Grazie per aver richiesto un appuntamento senza impegno con un nostro Consulente del Credito e Assicurativo.

Hai inserito correttamente tutti i dati necessari e a breve riceverai una e-mail con un link da convalidare per inviare i tuoi dati.
Affiliato
Il Ducato Immobiliare Srl
Via XX settembre , 29 29017 Fiorenzuola D'Arda (PC)

Il nostro staff


  • Basma Bouraqba
    Collaboratrice

  • Oumaima Bouraqba
    Collaboratrice

  • Shanaia Nathania Eara Dela Cruz
    Coordinatrice

  • Alessandro Izzo
    Affiliato
Via XX settembre , 29 29017 Fiorenzuola D'Arda (PC)
Zona: Fiorenzuola D'Arda
Mostra su mappa
Orari: Dal lunedì al venerdì dalle 9:00 alle 13:00 e dalle 15:00 alle 20.00. Sabato su appuntamento. Domenica chiuso.
Affiliato
Il Ducato Immobiliare Srl
Via XX settembre , 29 29017 Fiorenzuola D'Arda (PC)

2026 Tecnocasa Franchising S.p.A. - P. IVA 08365160152 - Via Monte Bianco 60/A 20089 Rozzano (MI). Ogni agenzia ha un proprio titolare ed è autonoma. Privacy policy | Policy utilizzo | Cookie policy